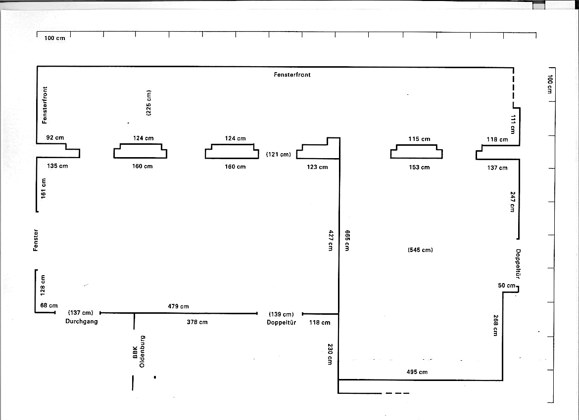
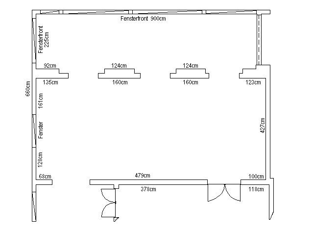
Downloads Satzung BBK NDS, 3-9 Antrag auf Mitgliedschaft Merkblatt zur Aufnahme Satzung BBK OL Grundriss BBK-Galerie Grundriss BBK-Galerie und Artothek